Studie transitního hotelu ČSA, Praha

Náměstí Curieových, 110 00, Staré Město, Praha / 50.09195806812005, 14.419506270505588
Jiřina Loudová_Studie hotelu ČSA_4

Myšlenka vystavět hotel na místě pozdějšího hotelu Intercontinental byla prostřednictvím architektonických studií prověřována již ve druhé polovině padesátých letech dvacátého století. V následujících letech se hledání vhodného místa a podoby mezinárodního hotelu v Praze věnovaly týmy architektů dokonce z několika projektových ústavů (KPÚ Praha, PPÚ, KPÚ Brno).

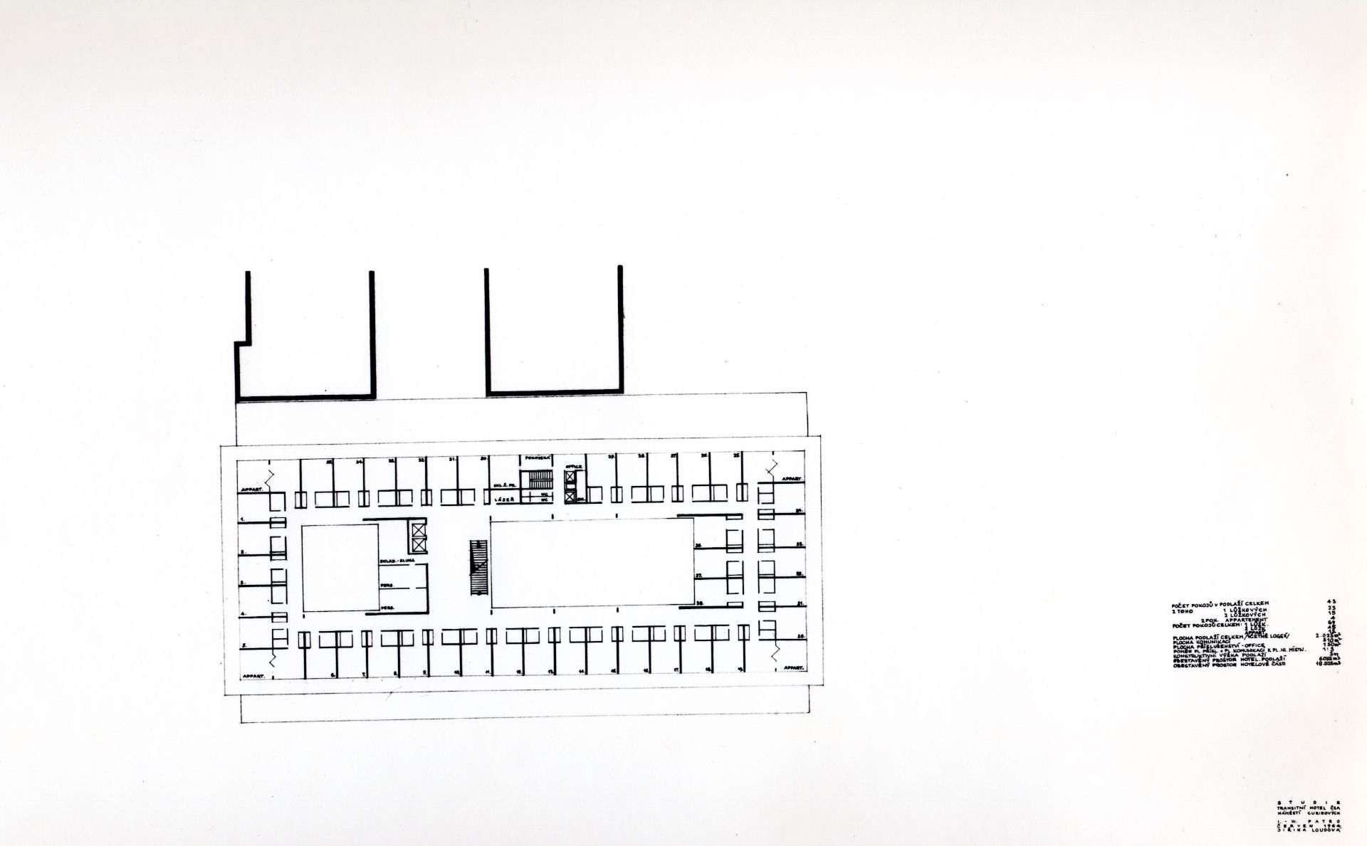
Návrh Jiřiny Loudové pochází patrně ze souboru studií, které v roce 1964 na umístění transitního hotelu ČSA v prostoru staroměstského předmostí Čechova mostu vypracovali architekti n. p. Konstruktiva (resp. tzv. Vývozního závodu Konstruktivy), o kterém dosud bližší podrobnosti nebyly známy. Album studií, mezi nimiž jsou vedle návrhu Jiřiny Loudové i práce Jana Šrámka a Jasana Burina, Věry Hylišové a dalších jejich kolegů, se dochovalo v pozůstalosti architektů Loudových. 

Jiřina Loudová navrhla hotel jako poměrně nízký kompaktní kvádr se dvěma vnitřími nádvořími, pracující v duchu brutalismu s efektním střídáním světel a stínů na fasádě díky hlubokým lodžiím, členitou střešní krajinou a pravděpodobně se záměrem uplatnění odhaleného betonu.

Zdroje:

Pozůstalost Jiřiny Loudové

Lenka Popelová, spolupráce Martin Lapšanský, Srovnávací studie a soutěže na hotely šedesátých let v Praze – výstavba hotelu Intercontinental v širších souvislostech. In: Kateřina Houšková (ed.), Hotel Intercontinental v Praze. Historie | urbanismus | architektura, Praha 2019, s. 35–47.