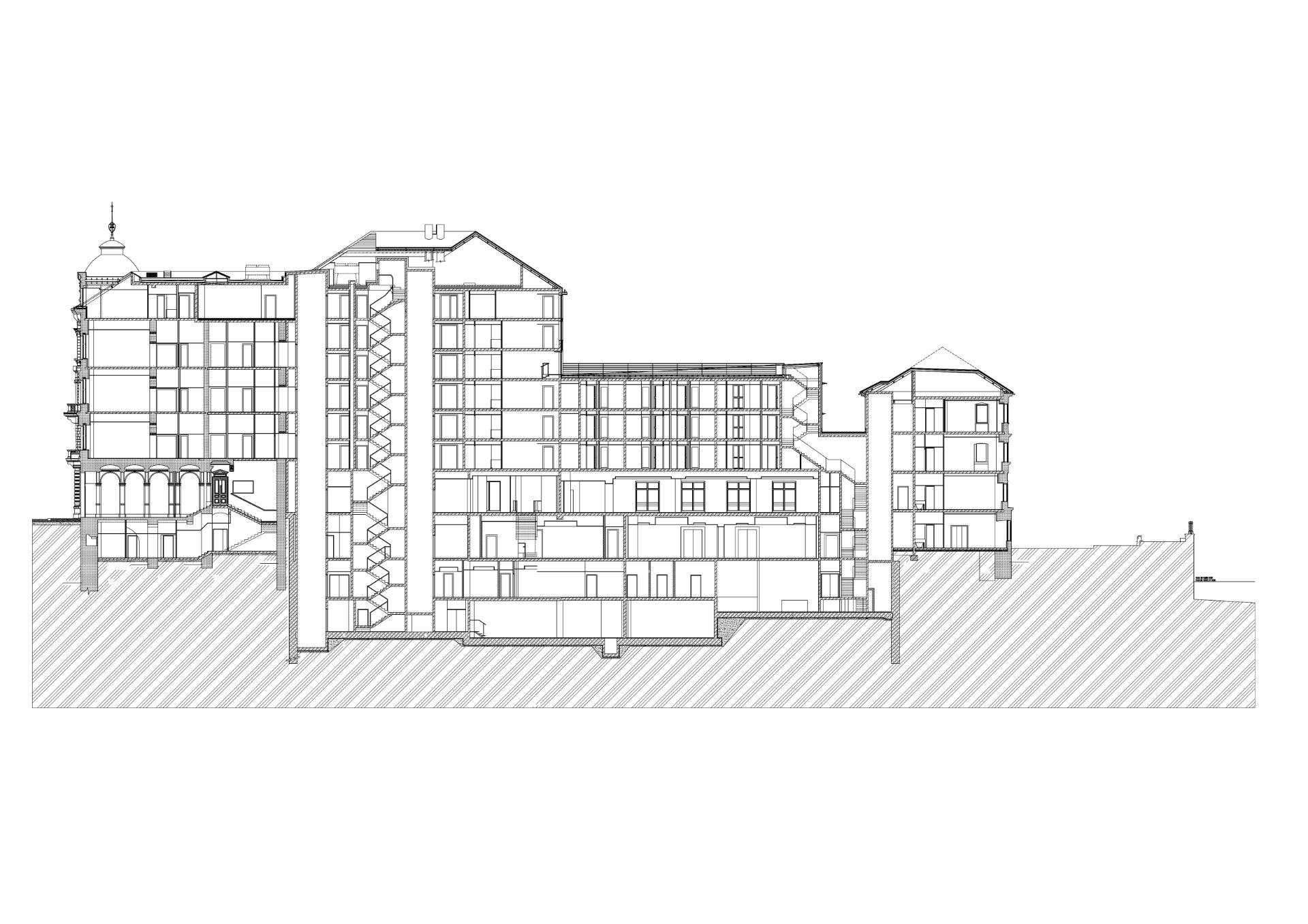
Hotel Four Seasons, Praha 1 – Staré Město

Vítězslava Rothbauerová / Petr Brzobohatý, Martin Feistner, Jiří Hůrka, Eva Koláčková, Radana Feistnerová
1996–2000
Veleslavínova 1098/2a, 110 00 Josefov / 50.08761872772343, 14.414683257500506
Roth_FS_01

Hotel Four Seasons byl postaven na základě vítězného návrhu v soutěži konané v roce 1996. Vítězslava Rothbauerová se podílela na návrhu, projektu i na autorském dozoru stavby.