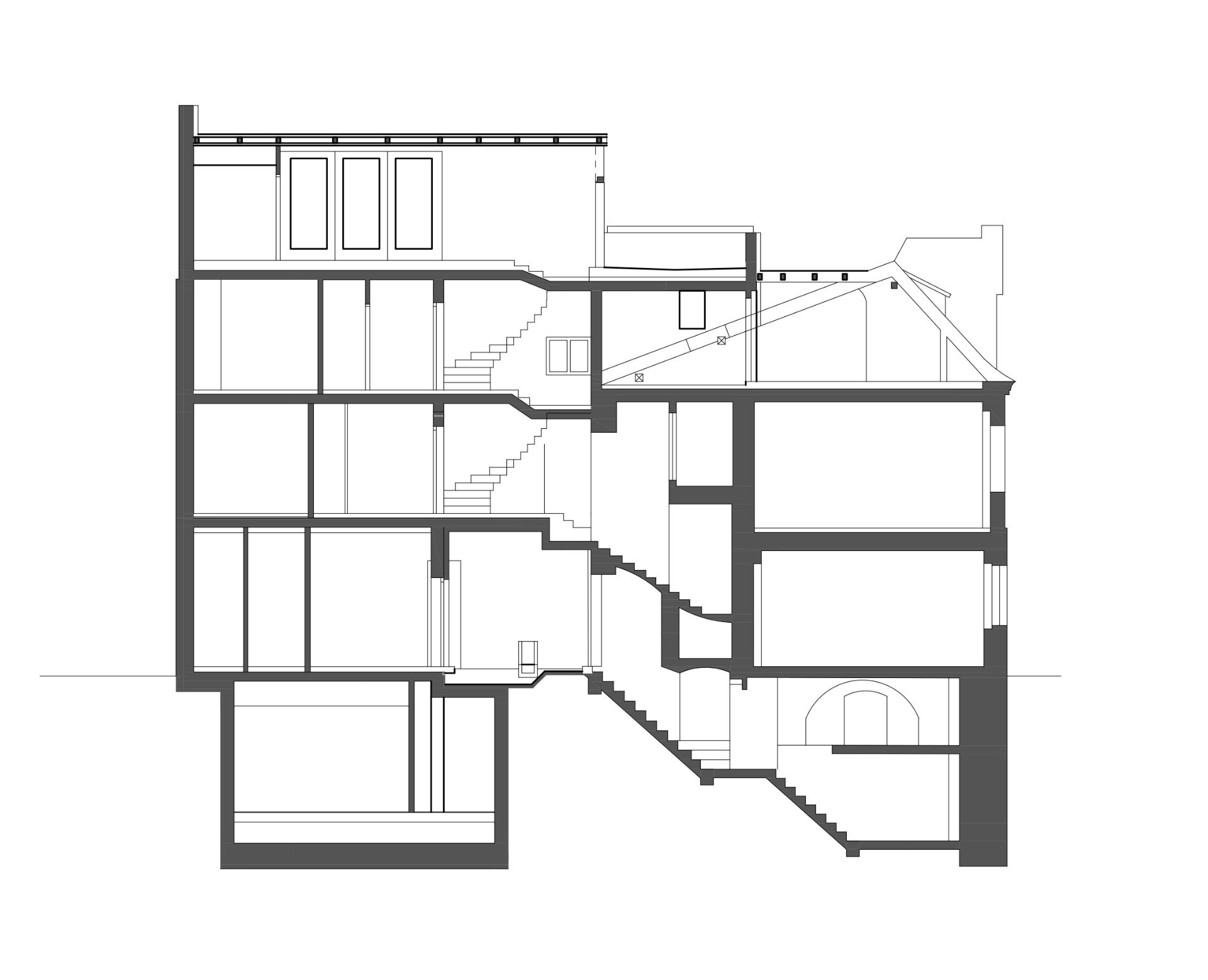
Rekonstrukce měšťanského domu s přístavbou vč. interiérů bytů a restaurace, Míšeňská, Praha 1

Hana Seho / Petr Hlaváček
2005–2006
Míšeňská 70, 118 00 Malá Strana / 50.087815632755245, 14.408290420905836
Seho_Míš_01

Petr Hlaváček je spoluautorem rekonstrukce a přístavby; interiéry bytů a restaurace zpracovávala Hana Seho samostatně.