Obnova kláštera Hostinné, diplomní projekt

1982
Nádražní 119, 543 71 Hostinné / 50.54003859836461, 15.727809813340881
Seho_dip_01

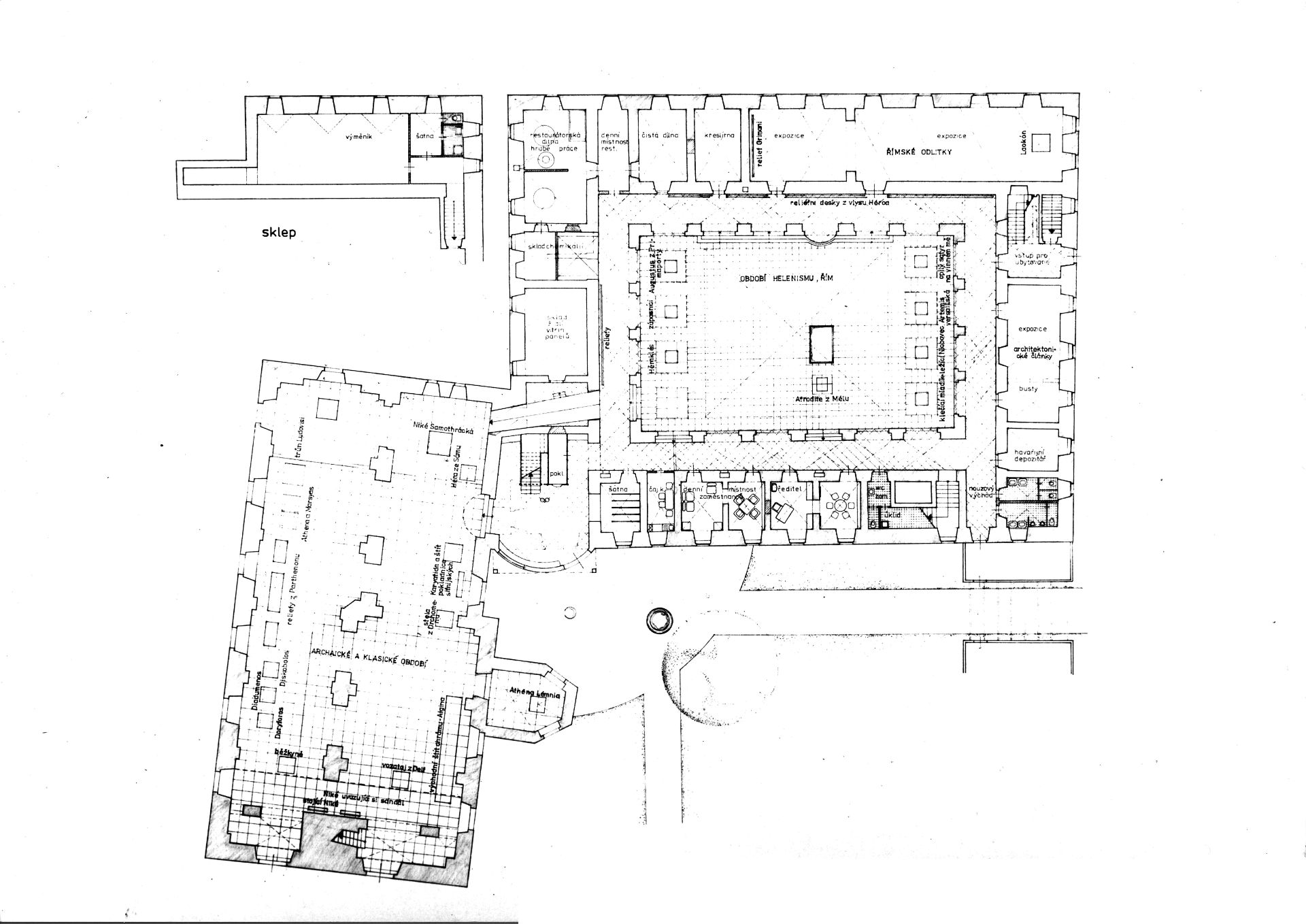
Budova kláštera měla být využívána jako muzeum antického umění. Diplomní projekt byl zpracováván v ateliéru Svatopluka Voděry.