ženy v architektuře
EN
architektka
dílo
téma
o projektu
aktuality
login
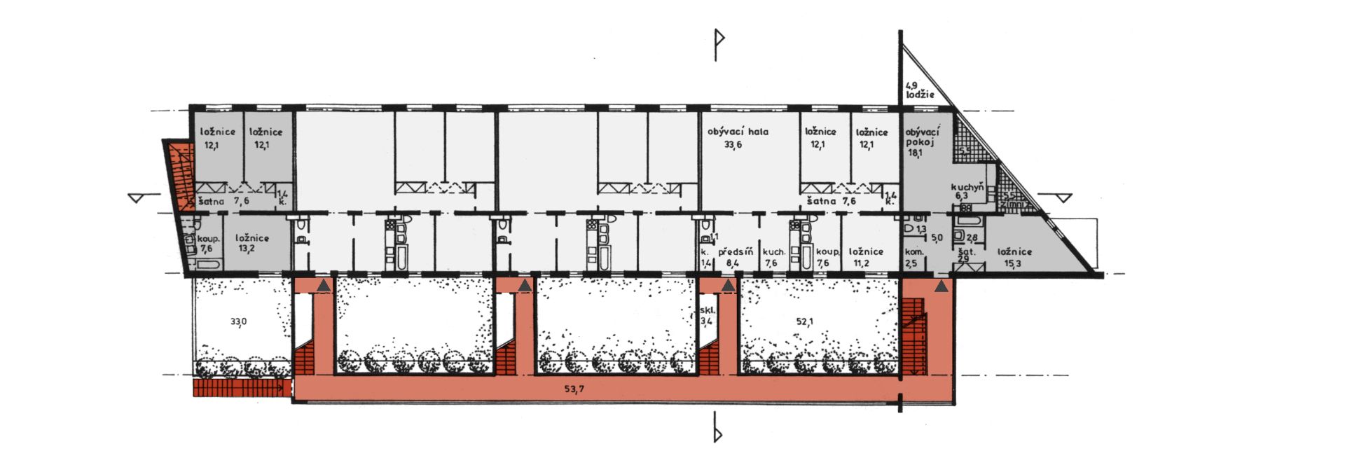
Studie bytového domu, Praha-Chodov
Hana Seho
1991
4
4