ženy v architektuře
EN
architektka
dílo
téma
o projektu
aktuality
login
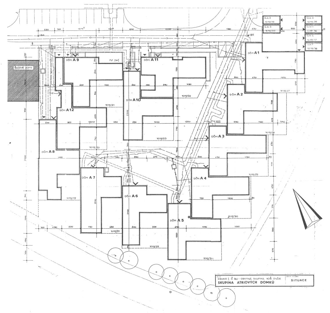
Obytná skupina Voříškův Dvůr, České Budějovice
Naděžda Dvořáková
/
Antonín Dvořák
1976
V Oblouku, České Budějovice 3, 370 04 České Budějovice / 48.991090421333745, 14.462073744888022
1
1
Související díla