Malá vodní elektrárna, Branná

Branná 71, 788 25 Branná / průmyslová stavba
Rothbauerová_Branná_01

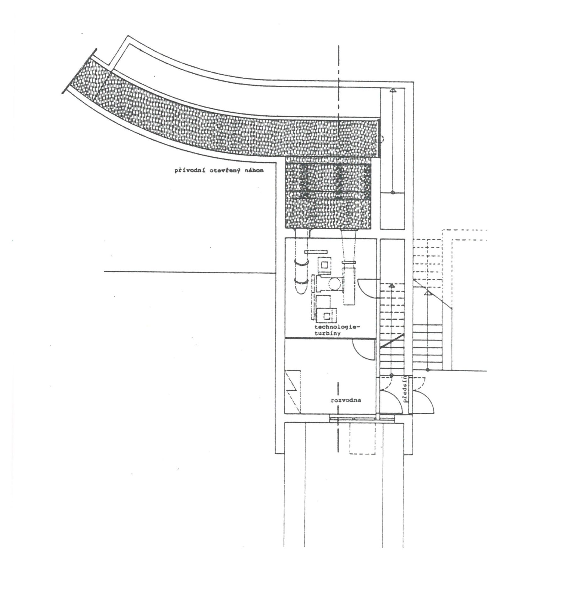
Návrh pracuje s motivem vlny, která se tyčí nad náhonem. Řeka Branná prochází šířkou domu. Tvar a hmota objektu sledují jeho tok. Voda ze sevřeného údolí jesenických hor domem „proplouvá“, měkký tvar domu zdůrazňuje její proudění. V objektu je kromě technologického vybavení zajišťujícího výrobu elektřiny umístěna provozní místnost a prostor pro přespání.