women in architecture
CZ
architect
work
theme
about
news
login
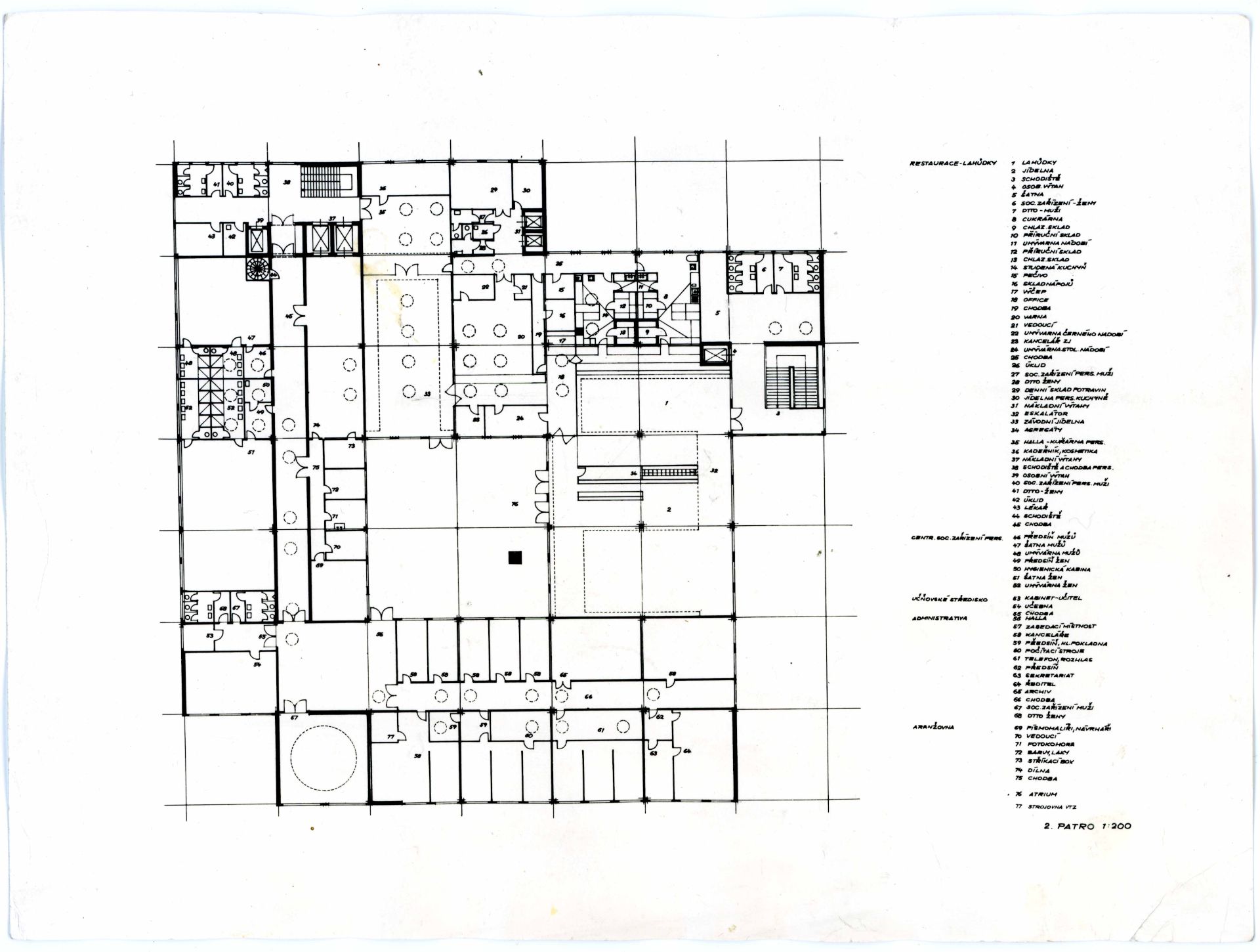
OD Tesco/Prior, Pardubice
Růžena Žertová
1970–1974
50.0364297, 15.7672358
4
4