women in architecture
CZ
architect
work
theme
about
news
login
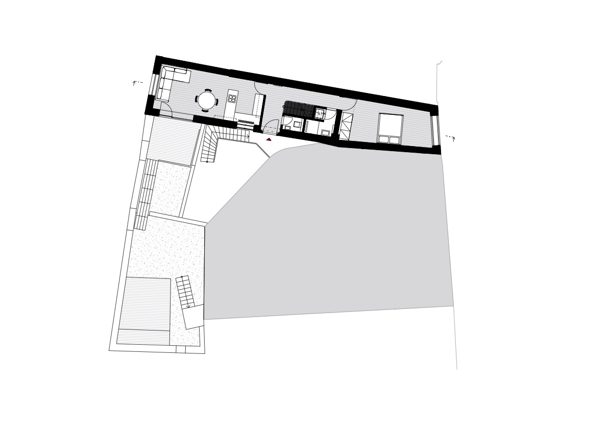
Narrow house, Litomyšl
Jitka Ressová
/
Hana Maršíková
,
Jan Pavézka
2010–2021
2
Internet links
ellement.cz
2
Related works
#contemporary architecture